The Blueprint blog
Inside magicplan

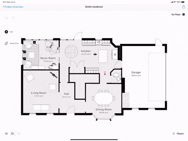
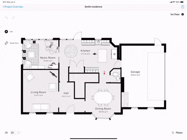
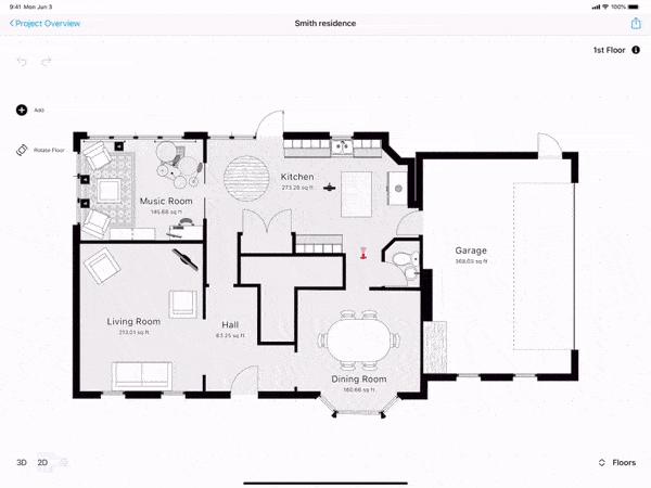
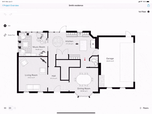
The New Floor Plan Editor is officially here!
We've prepared a short video to show you the main changes & improvements.
The new Editor is available immediately and free of charge to everyone, regardless of the subscription tier.

π New tap interactions provide easy navigation and less chance of unintended changes
π Updated action menu increases editing speed and maximizes canvas size
π Seamless switch between 2D, 3D and Elevation view
π Switch between floors and create new floors from the editor
π 3D is now also available if you don't have an internet connection
π The new head bar lets you export & share from the editor

New tap interactions provide easy navigation and less chance of unintended changes.

Easily switch between 2D, 3D and Elevation view.

Switch between multiple floors and create new ones directly from the Editor.
You can learn more about how to use The New Floor Plan Editor in the video here.
We constantly want to improve magicplan. Please ask questions, give feedback, and share your ideas. Weβre always happy to connect with members of our community
featured
/Inside magicplan
/Integration
featured
/Inside magicplan
/Integration
featured
/Inside magicplan
/Integration
Bernd Wolfram
Head of Product